

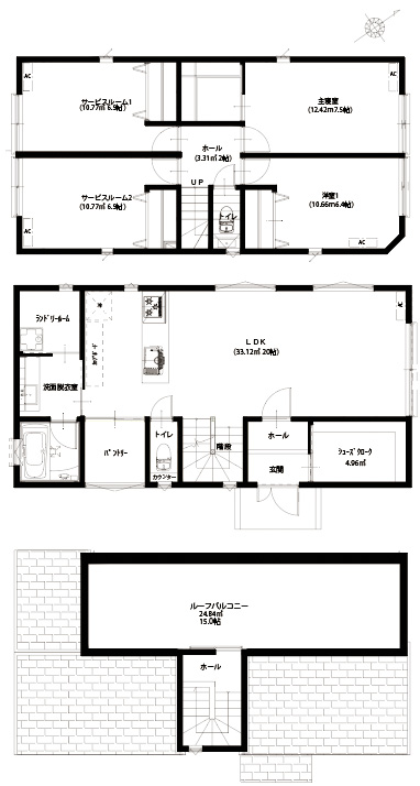
敷地面積 172.96m²建物面積 124.09m²
木造 | FLOOR PLAN
田園都市線「溝の口」駅より徒歩圏。
穏やかな高台に位置する本邸は、周囲からの視線や喧騒を抑え、落ち着いた住環境を確保した戸建て住宅です。
日々の暮らしに、確かな安心感をもたらします。
住まいの中心となる開放的なリビングは、家族が自然と集まり、穏やかな時間を育む空間。
リビングに連なる大型バルコニーは、陽光と風を感じながら、お子様の遊び場や家族のくつろぎの場として、多彩に活用できます。
また、見守りやすい家事動線と豊富な収納計画により、住空間は常に整い、日々の家事や子育てをスムーズにサポート。
忙しい毎日の中でも、家族に目が届く安心設計が施されています。
高台ならではの開放感と、暮らしやすさへの細やかな配慮。
住まいの質と、家族の安心を大切にされる方にお勧めしたい一邸です。